BETTER ENGLISH - MÀU SẮC CỦA NGƯỜI DẪN ĐẦU

  • Khách hàng: Better English
  • Lĩnh vực: Trung tâm ngoại ngữ quốc tế
  • Địa điểm: Thái Bình
  • Hạng mục triển khai: Thiết kế và thi công trung tâm ngoại ngữ
Trong thời trang, người ta thường khuyên những người da ngăm không nên mặc màu vàng nếu không muốn trông da bạn tối hơn.
 
Trong thiết kế nội thất, các chuyên gia cũng khuyên rằng bạn không nên sử dụng quá nhiều màu vàng trong không gian nếu không muốn tạo ra cảm giác lo lắng không cần thiết.
 
NHƯNG những người tự tin với làn da ngăm của mình lại không ngần ngại mặc màu vàng để tôn lên sự khác biệt tạo ra xu hướng mới. Cũng giống như Better English - một ngôi sao dẫn đường sẽ không ngại tỏa sáng để thể hiện rõ cá tính thương hiệu trên con đường phát triển của họ. Tự hào là một chuyên gia trong lĩnh vực sáng tạo không gian nội thất thương hiệu. Hãy cùng xem các ATH Creative tạo nên màu sắc khác biệt mang cá tính thương hiệu mạnh mẽ mà vẫn hài hòa cho trung tâm Ngoại ngữ Quốc tế cho Better English nhé!
Xem ảnh dự án

ĐÔI NÉT VỀ BETTER ENGLISH

Kinh nghiệm trong hoạt động định hướng và chỉ dẫn cho học viên của Better English bắt đầu từ năm 2009 khi tập thể lãnh đạo của Better English Center gây dựng trường học đầu tiên cho học sinh Thái Bình, những bạn không có nhiều cơ hội tiếp cận với những dịch vụ giáo dục chất lượng. Trong thời gian hoạt động tại Thái Bình, Better English JSC đã xây dựng thành công thương hiệu của mình bằng việc định hướng cho các em theo đuổi ước mơ lớn trong tương lai cũng như khuyến khích các em đạt được nhiều thành tích lớn hơn nữa trên con đường học thuật.

ĐI TÌM SỰ KHÁC BIỆT CỦA NGÔI SAO DẪN ĐẦU

“Một trung tâm ngoại ngữ quốc tế với bề dày 10 năm kinh nghiệm. 

Ngôi sao dẫn đường, người tiên phong cho học sinh, sinh viên Thái Bình vươn lên tầm cao mới, vươn tới tương lai rạng rỡ hơn”. 

Đó là những gì được nhắc đến khi nói về Better English. Với slogan : "Better English, Better Life" - "Tiếng anh tốt, Tương lai sáng", Better English luôn chú trọng đổi mới, hướng đến sự hiện đại, chuyên nghiệp. Nhân kỷ niệm 10 năm thành lập, Better English hợp tác với ATH Creative với mong muốn tạo ra một không gian mới mẻ, hiện đại, chuyên nghiệp và đặc biệt là khẳng định màu sắc dấu ấn thương hiệu. 

Ý TƯỞNG THIẾT KẾ

Nhằm đồng bộ từ hình ảnh nhận diện lên khắp không gian nội thất trung tâm Better English, ATH Creative lấy cảm hứng thiết kế dựa trên hình ảnh ngôi sao trên logo - một sản phẩm khác được thực hiện bởi team ATH Brand. Qua đó, thể hiện sự chuyên nghiệp trong quá trình nhận diện và tăng sự ghi nhớ tới khách hàng, cũng như hướng đến hình ảnh một đơn vị giáo dục hàng đầu luôn chú trọng đến sự đổi mới, hiện đại và chuyên nghiệp, đồng thời trở thành người tiên phong cho học sinh, sinh viên Thái Bình vươn lên tầm cao mới, vươn tới tương lai rạng rỡ hơn. 

TẠO RA SỰ KHÁC BIỆT
ẤN TƯỢNG

Đồng bộ hóa mạnh mẽ màu sắc thương hiệu 

Trước tiên, để mang đến hình ảnh đồng bộ hóa mạnh mẽ và tạo ra sự khác biệt cho Better English, đội ngũ thiết kế của ATH Creative đã lựa chọn cặp màu chủ đạo vàng - xanh. Đây không chỉ là  màu sắc chủ đạo của thương hiệu mà còn là cặp phối màu hot hiện nay. Theo tâm lý học về màu sắc, màu vàng có tác dụng kích thích sự sáng tạo, tươi mới. Màu xanh là màu sắc đặc trưng của giáo dục và cũng là sự kết hợp hợp lý nhất làm dịu đi sự gay gắt của sắc vàng. 

Nhiều người vẫn luôn ngại rằng, quá nhiều màu vàng sẽ làm cho không gian trở nên gay gắt và tạo ra cảm giác lo lắng cho con người. Tuy nhiên, với sự kết hợp này, màu sắc thương hiệu của Better English vẫn được khẳng định một cách mạnh mẽ trong tổng thể không gian hài hòa, hiện đại, trẻ trung. 

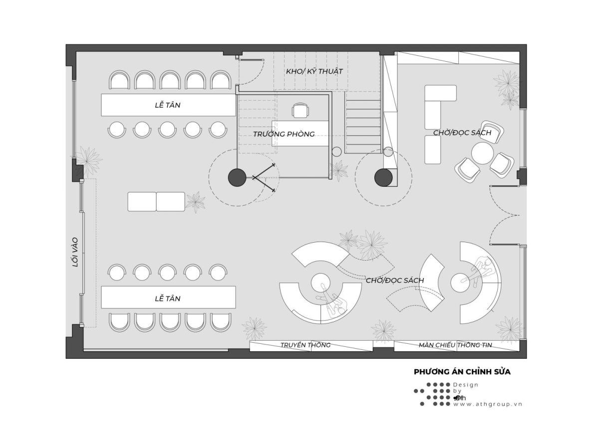
Tối ưu hóa không gian sử dụng

Không gian mở ra bằng quầy lễ tân. Sau khi nghiên cứu, đội ngũ thiết kế của ATH Creative đứa ra phương án chia quầy lễ tân và bàn tư vấn thành 2 dãy 5 người  ở 2 bên. Thuận lợi cho việc tư vấn cùng một lúc tránh gây ra sự ồn ào, mất tập trung. 

Tiếp đến là không gian  truyền thông - nơi trưng bày, giới thiệu những sản phẩm, thành tích của Better English. Không gian truyền thông được nối liền với không gian chờ đọc sách mang đến độ mở nhất định và tiện lợi cho việc thay đổi mục đích sử dụng khi tổ chức sự kiện, tọa đàm lớn nhỏ. 

Không những thế, tại phòng chờ đọc sách, các chi tiết như bàn, tủ sách, bóng đèn cũng được các điệu bằng hình ảnh ngôi sao - logo của Better English.  Những chi tiết nhỏ điểm xuyết trong không gian như vậy góp phần ghi dấu hình ảnh của Better English như một ngôi sao dẫn đầu vào tâm trí khách hàng. ATH Creative cũng tận dụng tối ưu không gian sân vườn khi thiết kế cửa sổ phòng chờ đọc sách mở ra view sân vườn để khách hàng có thể đọc sách và thư giãn ngắm nhìn thiên nhiên. 

Phòng quản lý trung tâm được đặt ở chính giữa bên trái. Đây là vị trí thuận lợi nhất để bao quát tất cả các hoạt động và xử lý kịp thời khi có tình huống xảy ra.

BETTER ENGLISH  - MÀU SẮC CỦA NGƯỜI DẪN ĐẦU

Bạn đang quan tâm đến các dịch vụ ATH cung cấp

Vui lòng để lại thông tin chúng tôi sẽ liên hệ với bạn trong thời gian sớm nhất

Hoặc chủ động liên hệ với ATH Creative 0934666922